Veröffentlicht: 2. August 2011
Kategorie: Fachartikel
Erdungsschemas, kommunizierende Systeme und Hochfrequenz- (HF-)Störungen
Die in einem Gebäude verteilten digitalen Systeme sind sehr empfindlich für dauernde oder vorübergehende, durch Strahlung oder Leitung übertragene HF-Störungen.
Durch Strahlung übertragene HF-Störungen
Diese Störungen sind die Folge von Signalen, deren Frequenz in der Regel höher als 1 MHz liegt. Diese Signale stammen von Schweißmaschinen, Lichtbogenöfen, Handys und anderen Sendern wie zum Beispiel gewissen HS-Schaltgeräten oder elektronischen Vorschaltgeräten. Tatsächlich gibt es Normen, welche die HF-Emissionen begrenzen (EN 55011), diese betreffen jedoch nicht alle Geräte. Wenn auch die Lästigkeit dieser Störungen für die KES unabhängig vom Erdungsschema ist, müssen unbedingt Schleifen vermieden werden, wie sie Schwachstromnetze zusammen mit elektrischen Stromkreisen bilden können (siehe Abb. 12).
Denn ein abgestrahltes elektromagnetisches Feld induziert in der Schleife einen Strom, der in der Schwachstromübertragungen Störspannungen erzeugt. Je größer diese Schleife ist, desto stärker ist das Störsignal. Die Naturerscheinung Blitz ist ein sehr starker Störer. Ein Blitzeinschlag von 50 kA in 100 m Entfernung kann in einer offenen Schleife von 1 m² eine Spannung von 100 V erzeugen, und einen Strom von über 20 A, wenn die Schleife geschlossen ist.
Im Schema der Abb. 13 wird beim Fehlen eines Begleitleiters (funktionelle Masse) zwischen den beiden Enden der Schwachstromverbindung eine Spannung aufgebaut, welche die übertragenen Signale stört. Der Begleitleiter bildet zusammen mit der Schwachstromverbindung eine induktive Schleife mit sehr kleiner Fläche (S2), die sehr viel kleiner ist als die ursprüngliche Fläche (S1 + S2) ist, weshalb sich eine sehr starke Reduktion der Störung ergibt.
Je nach den installierten Betriebsmitteln können mehrere Lösungen in Betracht gezogen werden:
- 1 - Verwendung eines Trenntransformators und Vermeidung von Streukapazitäten zwischen der Elektronik und dem elektrischen Körper.
- 2 - Minimierung der Fläche der Schleife:
- 4 - In schwierigen Situationen eine Entkopplung an den beiden Enden (Eingang und Ausgang) der digitalen Verbindung mit Hilfe von Optokopplern oder Impulsübertragern vorsehen und die Abschirmung der digitalen Verbindung mit der Elektronik-Masse verbinden (siehe Abb. 14). Es darf nicht vergessen werden, dass vermieden werden muss, das Massennetz mit dem Schutzleiter PE zu verbinden, wenn die Isolationsfehlerströme sehr hoch sind (siehe Abb. 10) (Kopplung durch gemeinsame Impedanz bei 50 Hz).
- 5 - In sehr stark gestörten Umgebungen besteht schließlich die Lösung in der Übertragung über Glasfasern ...
Durch Strahlung übertragene HF-Störungen
Diese Störungen sind die Folge von Signalen, deren Frequenz in der Regel höher als 1 MHz liegt. Diese Signale stammen von Schweißmaschinen, Lichtbogenöfen, Handys und anderen Sendern wie zum Beispiel gewissen HS-Schaltgeräten oder elektronischen Vorschaltgeräten. Tatsächlich gibt es Normen, welche die HF-Emissionen begrenzen (EN 55011), diese betreffen jedoch nicht alle Geräte. Wenn auch die Lästigkeit dieser Störungen für die KES unabhängig vom Erdungsschema ist, müssen unbedingt Schleifen vermieden werden, wie sie Schwachstromnetze zusammen mit elektrischen Stromkreisen bilden können (siehe Abb. 12).
Denn ein abgestrahltes elektromagnetisches Feld induziert in der Schleife einen Strom, der in der Schwachstromübertragungen Störspannungen erzeugt. Je größer diese Schleife ist, desto stärker ist das Störsignal. Die Naturerscheinung Blitz ist ein sehr starker Störer. Ein Blitzeinschlag von 50 kA in 100 m Entfernung kann in einer offenen Schleife von 1 m² eine Spannung von 100 V erzeugen, und einen Strom von über 20 A, wenn die Schleife geschlossen ist.
Im Schema der Abb. 13 wird beim Fehlen eines Begleitleiters (funktionelle Masse) zwischen den beiden Enden der Schwachstromverbindung eine Spannung aufgebaut, welche die übertragenen Signale stört. Der Begleitleiter bildet zusammen mit der Schwachstromverbindung eine induktive Schleife mit sehr kleiner Fläche (S2), die sehr viel kleiner ist als die ursprüngliche Fläche (S1 + S2) ist, weshalb sich eine sehr starke Reduktion der Störung ergibt.
Je nach den installierten Betriebsmitteln können mehrere Lösungen in Betracht gezogen werden:
- 1 - Verwendung eines Trenntransformators und Vermeidung von Streukapazitäten zwischen der Elektronik und dem elektrischen Körper.
- 2 - Minimierung der Fläche der Schleife:
- entweder durch Parallelführung des Schwachstromkreises und der Speisung, jedoch im Abstand von etwa 30 cm (siehe vorhergehendes Kapitel),
- oder durch Hinzufügung eines Begleitleiters, wenn die Schwachstromverbindung nicht abgeschirmt ist. Es ist zu beachten, dass Begleitmassen (metallische Kabelkanäle, feine Armierungsnetze im Boden) dieselbe Rolle spielen wie ein Begleitleiter.
- 4 - In schwierigen Situationen eine Entkopplung an den beiden Enden (Eingang und Ausgang) der digitalen Verbindung mit Hilfe von Optokopplern oder Impulsübertragern vorsehen und die Abschirmung der digitalen Verbindung mit der Elektronik-Masse verbinden (siehe Abb. 14). Es darf nicht vergessen werden, dass vermieden werden muss, das Massennetz mit dem Schutzleiter PE zu verbinden, wenn die Isolationsfehlerströme sehr hoch sind (siehe Abb. 10) (Kopplung durch gemeinsame Impedanz bei 50 Hz).
- 5 - In sehr stark gestörten Umgebungen besteht schließlich die Lösung in der Übertragung über Glasfasern ...
Durch Leitung übertragene HF-Störungen
Diese Störungen sind die Folge von Signalen mit Frequenzen, die typisch zwischen 10 kHz und 30 MHz liegen. Sie rühren von Blitzschlägen, Schaltüberspannungen und bestimmten pulsgesteuerten Umrichtern her.
Blitz
In diesem Fall ist das Problem unabhängig vom Erdungsschema dasselbe: die an der Einspeisestelle der NS-Anlage erscheinende Blitzüberspannung ist im wesentlichen eine äußere Überspannung (sie betrifft alle aktiven Leiter). Sie wird von den Streukapazitäten zunehmend abgeschwächt, je mehr sie in das Netz eindringt.
Wenn ferner zwei kommunizierende Geräte in einem Abstand voneinander installiert sind, das eine in der Nähe des Einspeisungspunkte und das andere weiter entfernt, erscheint zwischen den Speisungen dieser beiden Geräte eine HF-Potentialdifferenz. Dadurch können die digitalen Kommunikationen gestört werden. Die Minimallösung für dieses Problem besteht darin, an der Einspeisestelle der NS-Anlage (in der Nähe des MS/ NS-Transformators) zwischen allen aktiven Leitern und Erde Überspannungsableiter anzuordnen, außer:
Schaltüberspannungen (Unterbrechung von induktiven Strömen)
Diese sind im Wesentlichen vom inneren Modus. Alle Erdungsschemas sind auf dieselbe Weise betroffen. Die einzige Lösung besteht darin, diese Überspannungen an ihrem Entstehungsort abzuschwächen.
Störungen durch pulsgesteuerte Umrichter
Gewisse Betriebsmittel wie zum Beispiel elektronische Vorschaltgeräte für bestimmte Leuchstofflampen und - röhren, Fernsehgeräte, Mikrocomputer usw. verwenden pulsgesteuerte Umrichter (welche die PBM, Pulsbreitenmodulation, anwenden). Diese erzeugen HF-Oberwellen, die empfindliche Geräte stören können. Wenn dies der Fall ist, gibt es drei Lösungen:
Anmerkung:
Der Einsatz von Filtern ist eine Elektroniker-Lösung, die von Herstellern von empfindlichen Geräten oft angewendet wird. Diese Lösung muss die Produktenormen einhalten, welche die 50-Hz-Streuströme begrenzen. Diese variieren in der Praxis bei an eine Steckdose angeschlossenen Geräten zwischen 0,2 und 1 mA, können jedoch für fest installierte Hochleistungsgeräte Wesentlich höher sein. Es gibt zum Beispiel Filter mit einem Streustrom von 2,85 mA für In = 50 A bei 50 Hz.
Zu bemerken ist, dass Informatikgeräte der Norm IEC 950 entsprechen, die für gewisse Einrichtungen (Grosscomputer, Rechner mit der Aufschrift "erhöhter Streustrom") Streuströme von bis zu 5% von In zulässt, was erklärt, warum eine separate Stromversorgung, normalerweise mit dem Erdungsschema TN, erforderlich ist.
Nicht vergessen werden darf, dass für diese Einrichtungen die französische Norm einen direkten Anschluss an den Hauptpotentialausgleichsleiter verlangt. Die Spannungsfestigkeit der Kondensatoren – Cy – der Standardfilter ist eine weitere wichtige Eigenschaft. Sie ist oft wesentlich niedriger als jene elektrischer Betriebsmittel. Die Filter sind deshalb empfindlich gegen äußere Überspannungen und können einen unmittelbaren Überspannungsschutz (mit Hilfe von Varistoren) erfordern. Dies stellt ganz allgemein das Problem der Isolationskoordination in der NS. Betrachten wir den Einfluss dieser Kondensatoren – Cy – auf die einzelnen Erdungsschemas:
Diese Störungen sind die Folge von Signalen mit Frequenzen, die typisch zwischen 10 kHz und 30 MHz liegen. Sie rühren von Blitzschlägen, Schaltüberspannungen und bestimmten pulsgesteuerten Umrichtern her.
Blitz
In diesem Fall ist das Problem unabhängig vom Erdungsschema dasselbe: die an der Einspeisestelle der NS-Anlage erscheinende Blitzüberspannung ist im wesentlichen eine äußere Überspannung (sie betrifft alle aktiven Leiter). Sie wird von den Streukapazitäten zunehmend abgeschwächt, je mehr sie in das Netz eindringt.
Wenn ferner zwei kommunizierende Geräte in einem Abstand voneinander installiert sind, das eine in der Nähe des Einspeisungspunkte und das andere weiter entfernt, erscheint zwischen den Speisungen dieser beiden Geräte eine HF-Potentialdifferenz. Dadurch können die digitalen Kommunikationen gestört werden. Die Minimallösung für dieses Problem besteht darin, an der Einspeisestelle der NS-Anlage (in der Nähe des MS/ NS-Transformators) zwischen allen aktiven Leitern und Erde Überspannungsableiter anzuordnen, außer:
- am Sternpunkt im Schema TN und TT, da der Sternpunkt direkt geerdet ist (die Überspannung fließt direkt zur Erde ab), es muss jedoch darauf geachtet werden, dass die Verbindung zwischen der Erdung des Sternpunktes und dem Schutzleiter PE möglichst kurz ist (siehe vorhergehendes Kapitel),
- am Leiter, an dem im Schema IT der Überspannungsableiter angeschlossen ist (im allgemeinen am Neutralleiter), da dieser Ableiter diese Überspannungen beseitigt.
Schaltüberspannungen (Unterbrechung von induktiven Strömen)
Diese sind im Wesentlichen vom inneren Modus. Alle Erdungsschemas sind auf dieselbe Weise betroffen. Die einzige Lösung besteht darin, diese Überspannungen an ihrem Entstehungsort abzuschwächen.
Störungen durch pulsgesteuerte Umrichter
Gewisse Betriebsmittel wie zum Beispiel elektronische Vorschaltgeräte für bestimmte Leuchstofflampen und - röhren, Fernsehgeräte, Mikrocomputer usw. verwenden pulsgesteuerte Umrichter (welche die PBM, Pulsbreitenmodulation, anwenden). Diese erzeugen HF-Oberwellen, die empfindliche Geräte stören können. Wenn dies der Fall ist, gibt es drei Lösungen:
- Dazwischenschaltung eines Trenntransformators mit Abschirmung. So sind zum Beispiel kürzlich Import- Fernsehgeräte ohne Transformator auf die schwarze Liste gesetzt worden (dies jedoch aus Gründen der Personensicherheit!).
- Verwendung von Ferrit-Ringkernen Diese dämpfen wegen des Joule- Effektes in magnetischen Werkstoffen die Störungen bis zu wenigen zehn MHz (siehe Abb. 15).
- Verwendung von Filtern wir zum Beispiel das Filter der Abbildung 16.
Anmerkung:
Der Einsatz von Filtern ist eine Elektroniker-Lösung, die von Herstellern von empfindlichen Geräten oft angewendet wird. Diese Lösung muss die Produktenormen einhalten, welche die 50-Hz-Streuströme begrenzen. Diese variieren in der Praxis bei an eine Steckdose angeschlossenen Geräten zwischen 0,2 und 1 mA, können jedoch für fest installierte Hochleistungsgeräte Wesentlich höher sein. Es gibt zum Beispiel Filter mit einem Streustrom von 2,85 mA für In = 50 A bei 50 Hz.
Zu bemerken ist, dass Informatikgeräte der Norm IEC 950 entsprechen, die für gewisse Einrichtungen (Grosscomputer, Rechner mit der Aufschrift "erhöhter Streustrom") Streuströme von bis zu 5% von In zulässt, was erklärt, warum eine separate Stromversorgung, normalerweise mit dem Erdungsschema TN, erforderlich ist.
Nicht vergessen werden darf, dass für diese Einrichtungen die französische Norm einen direkten Anschluss an den Hauptpotentialausgleichsleiter verlangt. Die Spannungsfestigkeit der Kondensatoren – Cy – der Standardfilter ist eine weitere wichtige Eigenschaft. Sie ist oft wesentlich niedriger als jene elektrischer Betriebsmittel. Die Filter sind deshalb empfindlich gegen äußere Überspannungen und können einen unmittelbaren Überspannungsschutz (mit Hilfe von Varistoren) erfordern. Dies stellt ganz allgemein das Problem der Isolationskoordination in der NS. Betrachten wir den Einfluss dieser Kondensatoren – Cy – auf die einzelnen Erdungsschemas:
- Im Schema TN stören sie die Leistungsschalter und Sicherungen nicht, die den Personenschutz bewerkstelligen.
- Im Schema IT stören sie die Kurzschlussschutzeinrichtungen nicht in höherem Masse. Wenn jedoch die mit solchen Filtern ausgerüsteten elektronischen Geräte sehr zahlreich sind, können Sie die Isolationsüberwachungseinrichtungen (CPI) mit NFStromeinspeisung stören, weshalb an deren Stelle Geräte mit Gleichstromeinspeisung vorzuziehen sind.
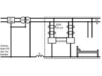
- Im Schema TT können die von den Filtern verursachten Streuströme, wenn die elektronischen Geräte zahlreich sind, unbeabsichtigte Auslösungen der Fehlerstrom-Schutzeinrichtungen hoher Empfindlichkeit (30 mA) bewirken. Aus diesem Grund schützt heute der Fachmann nicht mehr als drei Steckdosen mit einer einzigen 30-mA-Fehlerstrom- Schutzeinrichtung. Es muss darauf hingewiesen werden, dass die Schutzgeräte weiterentwickelt worden sind, um sie besser gegen elektromagnetische Störungen zu schützen. So zu Beispiel die Fehlerstrom- Schutzeinrichtungen
- Sie sind gegen Störungen mit steiler Front und Ausgleichsströme unempfindlich gemacht.
- Sie sind gegen in einer Richtung fließende Impulsströme immun gemacht.
- Sie lassen Blitzüberspannungen über den Überspannungsableiter gegen Erde fließen, ohne auszulösen (Fehlerstromschutz mit leichter Ansprechverzögerung).